981-3蒸汽疏水閥在管路停止運行后可完全排除凝結水,防凍,抗水擊、抗污及排污性能好,同時閥門出口端壓力高于進口端時,疏水閥能自動關閉.可代替止回閥。



| 零件名稱 | 材料 |
|---|---|
| 閥體 | 碳鋼 |
| 閥蓋 | 碳鋼 |
| 閥座 | 不銹負 |
| 閭瓣 | 不銹鋼 |
| 密封目球 | 不銹鋼 |
| 雙金屬片 | 不銹熱金屬 |
| 彈簧 | 不銹鋼 |
| 過濾器 | 不銹鋼 |
| 型號 | BNF1 | BNF2 |
|---|---|---|
| 工作壓力(MPa) | 0.01 | 0.3-0.8 |
| 工作溫度(℃) | 220 | 220 |
| 最大排量(kg/h) | 2100 | 500-3000 |
| 工作介質 | 蒸汽、凝結水 | |
| 型號 | BMF1 | BNF2 | |||||
|---|---|---|---|---|---|---|---|
| 連接方式 | ZG1/2″ | ZG3/4″ | ZG1″ | ZG1/2″ | ZG3/4″ | ZG1″ | |
| 通徑 | 15 | 20 | 25 | 15 | 20 | 25 | |
| 外形尺寸(mm) | L | 100 | 105 | 105 | 100 | 105 | 105 |
| W | 63 | 63 | 63 | 63 | 63 | 63 | |
| 重量 | 0.8 | 0.9 | 0.9 | 0.8 | 0.9 | 0.9 | |
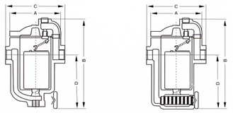
| 型號 | 981-3 | 981 | 980 |
|---|---|---|---|
| 連接尺寸 | 15.20.25 | 15.20.25 | 15.20.25 |
| Amm | 100 | 100 | 100 |
| Bmm | 190 | 190 | 190 |
| Cmm | 127 | 127 | 127 |
| Dmm | 100 | 100 | 100 |
| 螺栓數量 | 6 | 6 | 6 |
| 最大充許壓力及溫度 | 1.7MPa 232c |
1.7MPa 232c |
1.7MPa 232c |
| 最大工作壓力 | 1.7 | 1.7 | 1.7 |
溫馨提示:
本文中所有文字、數據、圖片均只適用于參考。需要查看更多的981-3蒸汽疏水閥性能參數、結構尺寸參數、價格等詳情,或要求印刷樣本,請聯系我們。
主營產品:氣動調節閥 - 電動調節閥 - 自力式調節閥
版版權所有 © 上海大田閥門管道工程有限公司
地址:上海市浦東新區川宏路528號宏圖大樓5樓
